AT WAR Exhibition
Being one of the largest exhibitions ever made at CCB, with more than 400 items, this proposal is conceived as a design protocol, suitable to experiment changes in the curatorship until last minute and remain consistent and faithful to the narrative.
At war is the main exhibition that the Centre for Contemporary Culture of Barcelona (CCCB) organized for the 2004 Forum of Cultures.
The exhibition, curated by Antonio Monegal, Francesc Torres and José María Ridao, takes a look at the experience of war, though it follows a thematic rather than a chronological order, stopping to analyse the different phases of a conflict. At war sows 450 awesome and shocking artworks & documents in an exceptionally long and complex linear narrative. Design was developed in parallel to curatorship and the specific artworks and documents selected had very significant modifications until the last minute.
Those conditions, the difficulty to deal with an extraordinarily extensive and constantly changing program and the will to provide freedom for the visitors to decide the speed and depth to experience such a dense and shocking exhibition where taken as an opportunity to develop a parametric design protocol taking as variables the thematic arguments and the specific program (the contents of the exhibition).
Some of the rules where fixed and reacted to the specific conditions of the site, and some others depended on curatorship variables such as number of sections and sub sections that each chapter had or number and dimension of the specific contents at each section.
PROTOCOL
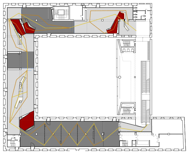
1. Circulation between level 1 and 2 must be reconfigured in such a way that we do not get out of the climax (we do not cross the lobby while changing levels).
2. Each section will have a clear threshold containing the title and main text in three languages. Visitors will literally cross the membrane will entering a section.
3. Sections will alternate spatial treatment between white and ambient lighted to dark and spot lighted.
4. Entry and exit of each section will be placed in diagonal, so that the fast way to visit the exhibition will be following the diagonal path and having full visual access to all section contents.
5. All two-dimensional artwork will be placed on the existing walls.
6. All three-dimensional contents will be placed in one single central three-dimensional support that will be anchored to one or more columns.
7. Three-dimensional support geometry will depend on the number of thematic groups. Surface will change its direction or will be split in two levels to separate groups.
8. Length of each three-dimensional support surfaces will depend on the amount and dimension of specific contents.
9. Video contents will be placed in open yet acoustically independent areas in each section, so that visual contact from the diagonal path is guaranteed but sound will not contaminate the rest of the room.
AT WAR Exhibition
In collaboration with SiO2arch
Project duration: 2004
Promotor: Centre de Cultura Contemporània de Barcelona
Type: Exhibition
Area: 2.600 m2
Site: Barcelona, Spain
Awards: Restricted Competition, First Prize
Design team: Jordi Ribó
In collaboration with SiO2arch
Project duration: 2004
Promotor: Centre de Cultura Contemporània de Barcelona
Type: Exhibition
Area: 2.600 m2
Site: Barcelona, Spain
Awards: Restricted Competition, First Prize
Design team: Jordi Ribó

