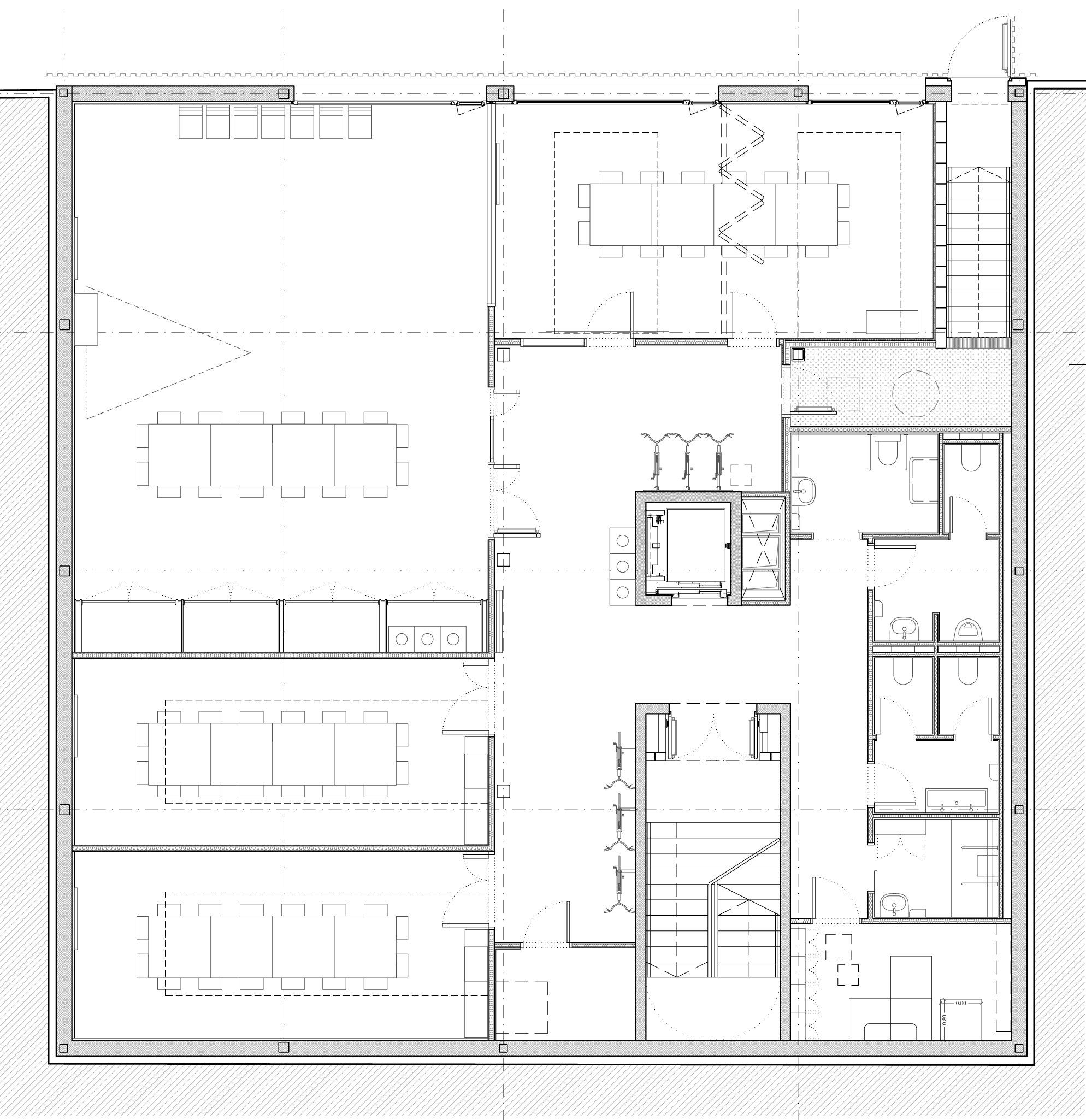
CAI La Marina

This pioneer neighbourhood facility gathers all the social assistance services of La Marina in one single building, establishing a symbiotic relationship between program and environmental strategy. LEED PLATINUM certified.
The new integral social centre at la Marina del Port is a pioneer project that groups all the social services of the neighbourhood and, therefore, must be a backbone of the social cohesion of the neighbourhood. A welcoming place, which neighbours feel as part of their everyday reality.
The centre should also be a space that fosters interaction and collaboration between all the people who work there, because this is the key issue for unexpected projects and initiatives, as a result of the debate among professionals from different disciplines, concerns and sensitivities, that will allow us to benefit from the potential through integrating proposals.
Third, like any contemporary public equipment, it must be an architectural reference designed for people, firmly committed to energy savings and responsible for reducing the ecological footprint throughout its entire life cycle.
The project was carried out in close collaboration with the Societat Orgànica and Vidal engineers and is expected to obtain a Leed Platinum certification.
Integral Social Center at La Marina
Project duration: 2018-2023
Promotor: Ajuntament de Barcelona
Type: Public Facility
Area: 1.600 m2
Budget: 4,1 M €
Site: Barcelona, Spain
Certified: LEED Platinum, A (CTE)
Awards: Open Competition, First Prize
Design team: Oriol Vives, Anna d’Acuña, Nuria Fors, Laura Gómez, Marc Lencina, Clàudia Orpez and Joel Pera
Collaborators: Oriol Vidal Enginyeria (MEP), Manuel Arguijo y Asociados (structures), Societat Orgànica (environmental consulting), Atis – Xavier Solà (quantity surveyor - project), Qestudi 29 Ass. Tecn. (quantity surveyor - construction) and I2A (acoustics)
Constructor: Gruas Constructora and Fustècnia
Photography: Adrià Goula
Project duration: 2018-2023
Promotor: Ajuntament de Barcelona
Type: Public Facility
Area: 1.600 m2
Budget: 4,1 M €
Site: Barcelona, Spain
Certified: LEED Platinum, A (CTE)
Awards: Open Competition, First Prize
Design team: Oriol Vives, Anna d’Acuña, Nuria Fors, Laura Gómez, Marc Lencina, Clàudia Orpez and Joel Pera
Collaborators: Oriol Vidal Enginyeria (MEP), Manuel Arguijo y Asociados (structures), Societat Orgànica (environmental consulting), Atis – Xavier Solà (quantity surveyor - project), Qestudi 29 Ass. Tecn. (quantity surveyor - construction) and I2A (acoustics)
Constructor: Gruas Constructora and Fustècnia
Photography: Adrià Goula
















